Location: Den Bosch
Status: Realized
Program: 188 Apartments, commercial
Date: 2005
Client: BV Ontwikkelingsmaatschappij Paleiskwartier
Total floor area: 21670 m2
Description
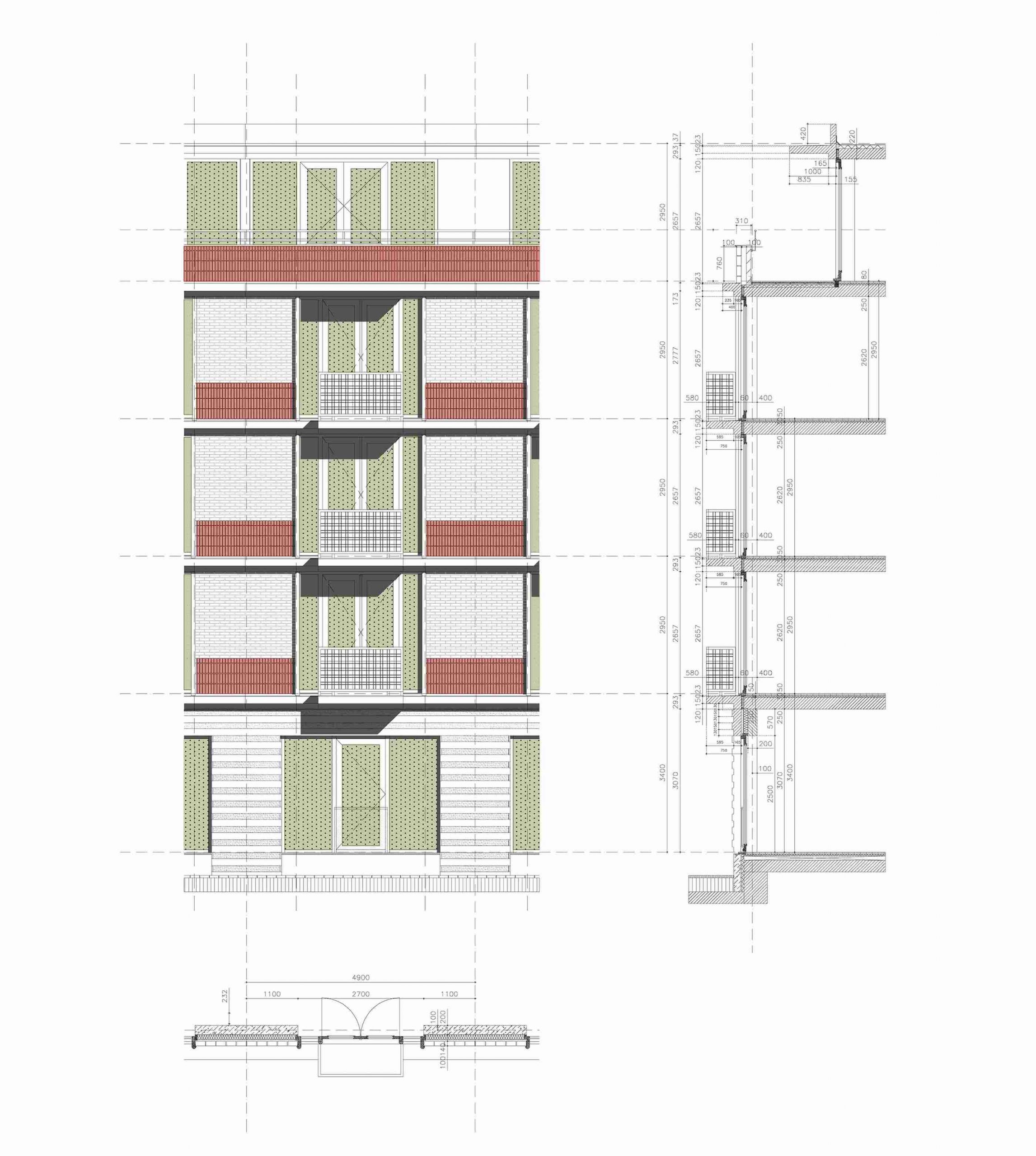
Located in the heart of Het Paleiskwartier in ‘s-Hertogenbosch, Prinsenhof emerges as a striking embodiment of contemporary architecture that gracefully intertwines modernity with a sense of historical context. This residential complex captivates with its elegant lines and thoughtful design, inviting residents and visitors to experience a harmonious blend of comfort and sophistication. The architectural vision for Prinsenhof is marked by a meticulous selection of materials and a sophisticated interplay of forms. The facade showcases a captivating combination of warm-toned bricks and expansive glass elements, establishing a dynamic relationship between solidity and transparency. This thoughtful design allows natural light to flood the interiors while creating a stunning visual experience that shifts throughout the day, casting beautiful shadows and reflections across the surfaces.
At the core of Prinsenhof is its emphasis on community and connectivity. The building’s layout is carefully crafted to encourage interaction among residents, featuring inviting communal spaces that foster social engagement. Green courtyards and shared gardens offer serene retreats, providing residents with tranquil outdoor areas to relax, unwind, and connect with nature. These beautifully landscaped spaces are seamlessly integrated into the overall design, ensuring that the beauty of the outdoors is always accessible. Functionality meets elegance in the arrangement of the apartments, which cater to a diverse range of lifestyles. Each unit boasts generous balconies and terraces that extend the living space outdoors, creating private sanctuaries for relaxation and enjoyment. The thoughtfully designed layouts enhance the connection to the surrounding landscape, with stunning views that invite the natural beauty of the area into everyday life.
Attention to detail is paramount throughout Prinsenhof, with every element of the design reflecting a commitment to quality and aesthetics. From the welcoming entrance that greets residents and guests to the carefully selected materials that adorn the interiors, each aspect has been thoughtfully considered to enhance the overall living experience. High ceilings and open floor plans create an airy ambiance, while modern finishes and fixtures ensure a sophisticated yet comfortable environment. Sustainability is integral to the design philosophy of Prinsenhof. The building incorporates energy-efficient systems, green roofs, and thoughtful landscaping, all aimed at minimizing its ecological footprint while promoting biodiversity within the urban fabric. This commitment to sustainability not only enriches the quality of life for residents but also demonstrates a deep respect for the environment and its preservation.
In essence, Prinsenhof represents a forward-thinking approach of modern living, where innovative architecture meets the charm of its historical surroundings. It is a place where residents can thrive in a beautifully designed environment that emphasizes connection, comfort, and sustainability. Prinsenhof stands as a landmark of contemporary architecture in ‘s-Hertogenbosch, inviting all to explore a space that celebrates both community and the natural world.











