Montesquieu

Home 5 Project 5 Montesquieu

Location: Prof. Cobbenhagenlaan 221, University Campus Tilburg
Status: realized
Program: law faculty
Date: 2004
Client: Credo Integrale plan ontwikkeling
Total floor area: 13160 m2

Description

The Montesquieu building is a defining landmark on the Tilburg University campus. Situated at Prof. Cobbenhagenlaan 221, it serves as the home of Tilburg Law School and hosts a variety of other essential facilities. Named after the renowned French philosopher Montesquieu, the building was officially opened in 2005 by none other than Mark Rutte, who was then State Secretary. Rising across ten floors, it houses an innovative E-learning center where students come together in dynamic, technology-driven workspaces.

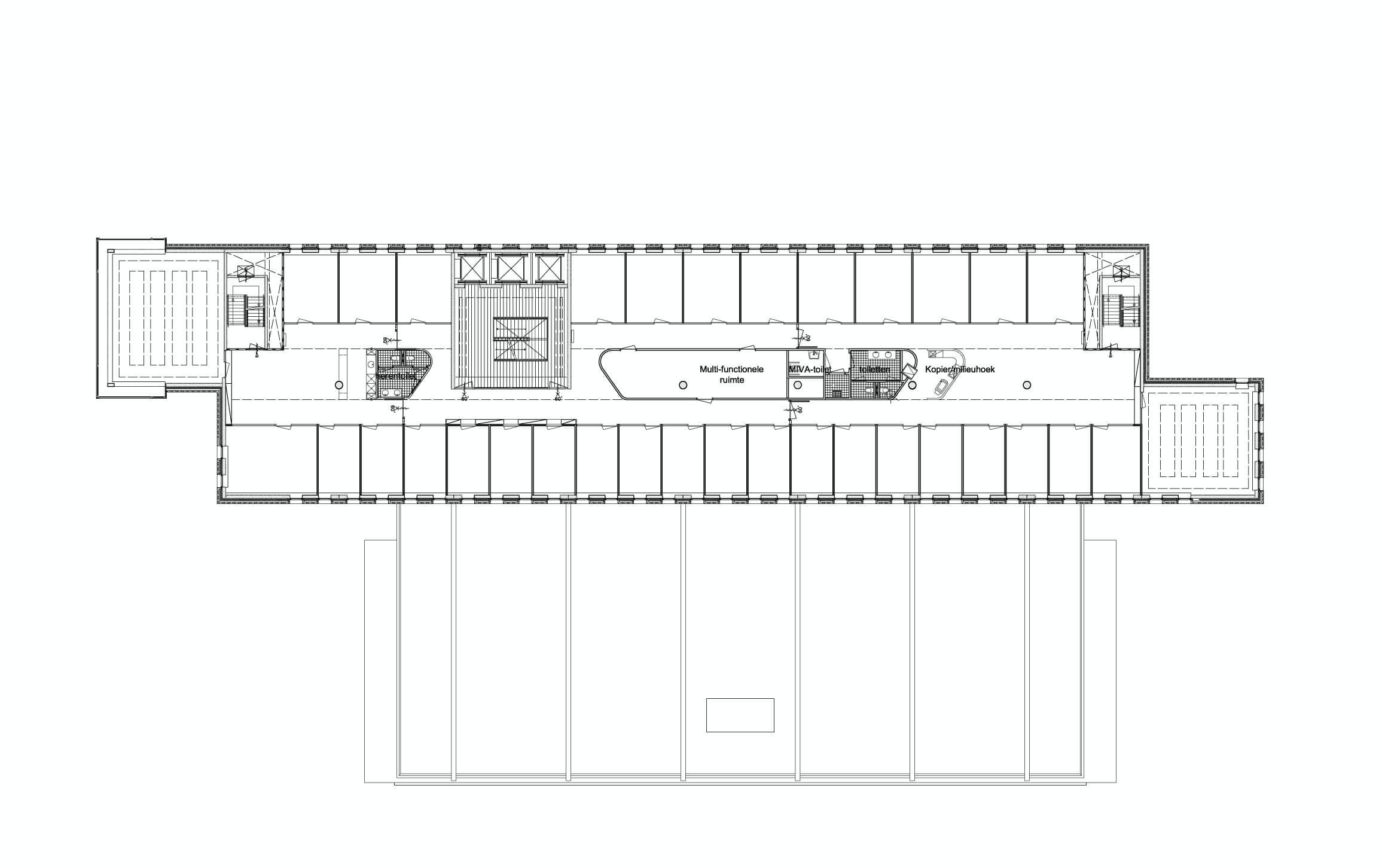
On the ground floor, the building features an inviting covered street that links Prof. Cobbenhagenlaan with a newly established pedestrian axis, guiding students along the campus’s main buildings. This thoroughfare is anchored by a striking two-story hall that contains the E-learning center. Opposite this lively passage lies the entrance to the main building. At each end, the building takes on an expressive form, as the main volume is artfully divided into two offset slabs of varying heights, creating a distinctive silhouette that draws the eye and adds dynamism to the structure.

The materials used for the interior street seamlessly reflect the exterior facade, emphasizing both openness and continuity. The color palette, with its muted tones of white and light grey, subtly blends into the existing campus, resonating with the architectural language of Bedeaux’s earlier work on the primary buildings. The exterior is clad in German clinker bricks crafted from Westerwald clay, arranged in the refined Hilversum format and laid in a Norwegian bond. The deep-set windows provide a striking interplay with the meticulous brickwork, while the vertical rhythm of the windows enhances the building’s elegant simplicity.

The expanded depth of the building allows for a flexible interior space that can be used for communal purposes, maximizing functionality and striking an ideal balance between facade and floor area, ensuring both flexibility and efficiency in design.

 

Commercial
EN