Location:Arnhem
Status: Realized
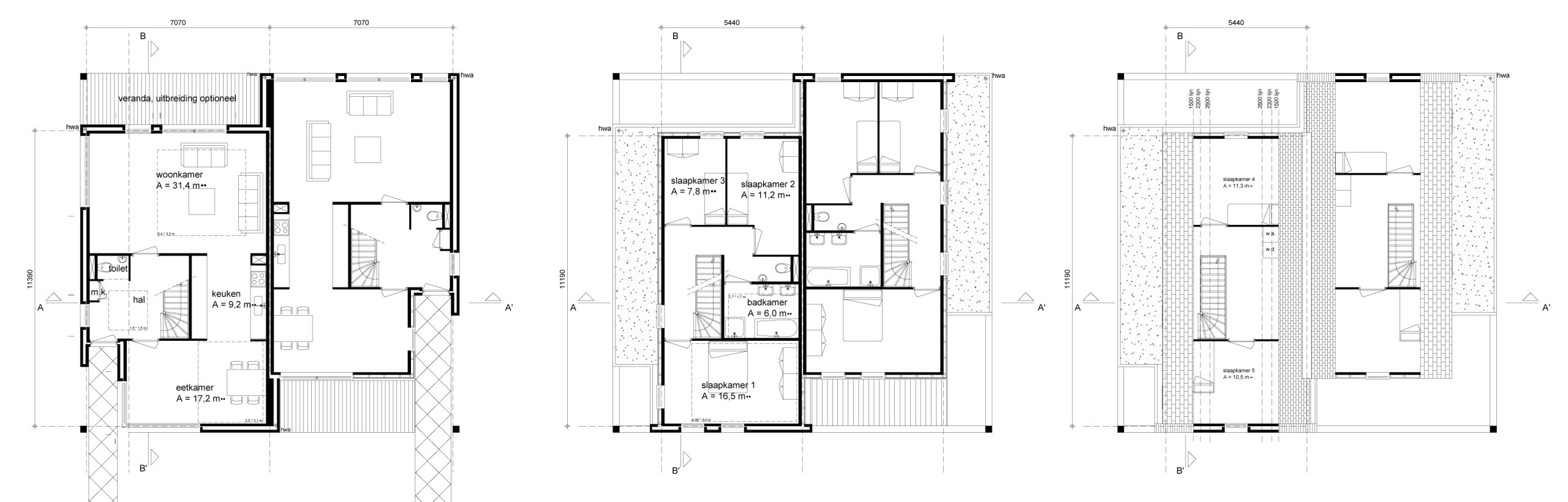
Program: 64 single-family houses
Date: 2007
Client: KONDOR WESSELS PROJECTEN BV
Total floor area:10624m2
Description
Leihagen Schuytgraaf is an innovative residential development proposed in Arnhem, characterized by its unique architectural typology of semi-detached Dutch gable-roof houses. Each home features gables that are thoughtfully shifted in alignment, enhancing the individuality of each unit while maintaining a cohesive neighborhood aesthetic. This intentional displacement of gables creates a dynamic skyline that stands out against the surrounding environment of the residential area.
The architectural expression of the houses is further emphasized by a deliberate choice of materials for the gables. The interplay of bricks and slates not only contributes aesthetically but also reinforces the distinct identity of each dwelling. The two different materials used for the gables switch sides on the opposite facades, creating a rhythmic pattern that enhances the overall design narrative. Each house is composed of two connected volumes, which are united by a prominent horizontal element. In one configuration, this connection is expressed through the visible thickness of the floor, effectively dividing the volume into two distinct sections. In the other configuration, the difference in materials serves as the connecting feature. This connection occurs at a uniform height, ensuring visual harmony across the structure. The concrete element of the first floor connects both houses at the same height like a binding ribbon, reinforcing their relationship while providing a continuous visual flow. This element elegantly separates at the entrance, drawing attention to the pathway leading to the home.
To foster a sense of cohesion, both houses employ similar window designs in terms of typology, materials, and dimensions. This uniformity not only promotes harmony between the volumes but also enhances the overall aesthetic appeal of the residences. The thoughtful combination of bricks and slates, alongside the strategic placement of architectural elements, establishes Leihagen Schuytgraaf as a distinctive and inviting residential area in Arnhem.











