Location: Haarlem
Status: Realized
Program: Apartments and single-family houses
Date: 2015
Client: Ymere
Total floor area: 14569 m2
Description
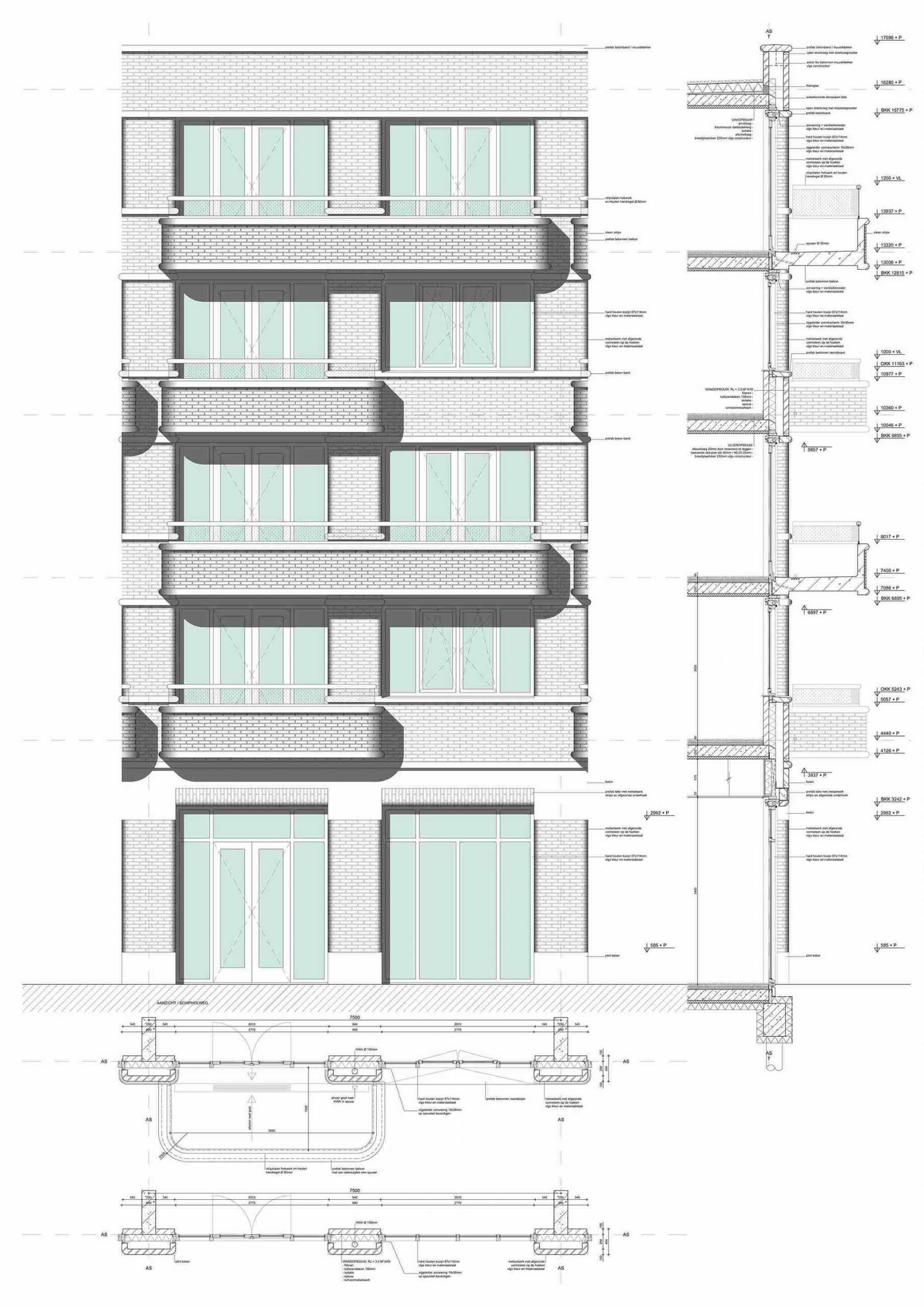
In the vibrant heart of Haarlem, the Hof van Dumont stands as a remarkable testament to contemporary architecture, seamlessly merging innovative design with the beauty of its natural surroundings. This exceptional residential complex redefines urban living, crafted by a visionary architectural concept that prioritizes both aesthetics and functionality. The building’s design features a striking interplay of warm-toned brick and expansive glass, creating a facade that is both inviting and dynamic. The rhythmic pattern of balconies and large windows not only enhances the visual interest of the exterior but also maximizes natural light, flooding the interiors with warmth and vitality.
The Hof van Dumont is home to several designed apartments, each tailored to accommodate a diverse range of lifestyles. Inside, residents are greeted by open floor plans that foster a sense of spaciousness and flexibility, allowing for personalized living experiences. Generously sized windows frame stunning views of the landscape, effortlessly blending the indoor and outdoor environments. Each unit is meticulously designed to ensure comfort and convenience, with modern amenities that cater to the demands of contemporary living.
The architectural detailing throughout Hof van Dumont is a hallmark of its design. The flowing lines of the balconies create a sense of movement and elegance, offering residents private outdoor retreats to enjoy the beauty of their surroundings. These terraces not only extend the living spaces but also encourage a lifestyle that embraces nature, whether through morning coffee under the sun or evening gatherings with friends. The grand entrance, approached via a beautifully landscaped pathway, welcomes residents and visitors alike into an inviting lobby that radiates sophistication and warmth.
Sustainability is intricately woven into the fabric of Hof van Dumont’s design philosophy. The building incorporates state-of-the-art energy-efficient technologies, including solar panels and green roofs, which significantly reduce its environmental impact while enhancing the quality of life for its residents. Rainwater harvesting systems and superior insulation further exemplify the commitment to eco-friendly practices, ensuring that the development respects and nurtures its natural context.
Hof van Dumont is more than just a collection of residences, it embodies a vibrant community where modern living meets a deep respect for the environment. Its striking architectural presence, thoughtful layouts, and dedication to sustainability create an inspiring habitat that resonates with both architects and the general public. Within the walls of Hof van Dumont, residents find not only a place to live but a community to thrive in, enriched by a lifestyle that celebrates comfort, connection, and the inherent beauty of their surroundings. Here, contemporary design coexists harmoniously with nature, inviting all to experience the perfect balance of urban sophistication and serene living.

















