Location: Rijssen, Netherlands
Status: Realized
Program: Offices and event areas
Date: 2010
Client: Reggeborgh
Total floor area: 3760 m2
Description
The Reggefiber building embodies a sweeping, semi-circular form, embracing a central atrium at its core. With its back turned to the railway, the building opens towards the rest of the Volker Wessels office park, creating an inviting, open facade that warmly greets visitors. The structure is crowned by 12 gracefully curved, laminated wooden beams, radiating like the spokes of a fan from the center of the circle and extending outward to the surrounding office spaces. At this focal point, a small, dome-shaped pavilion rises, serving as the building’s entrance and standing as a welcoming beacon on the curved plaza.
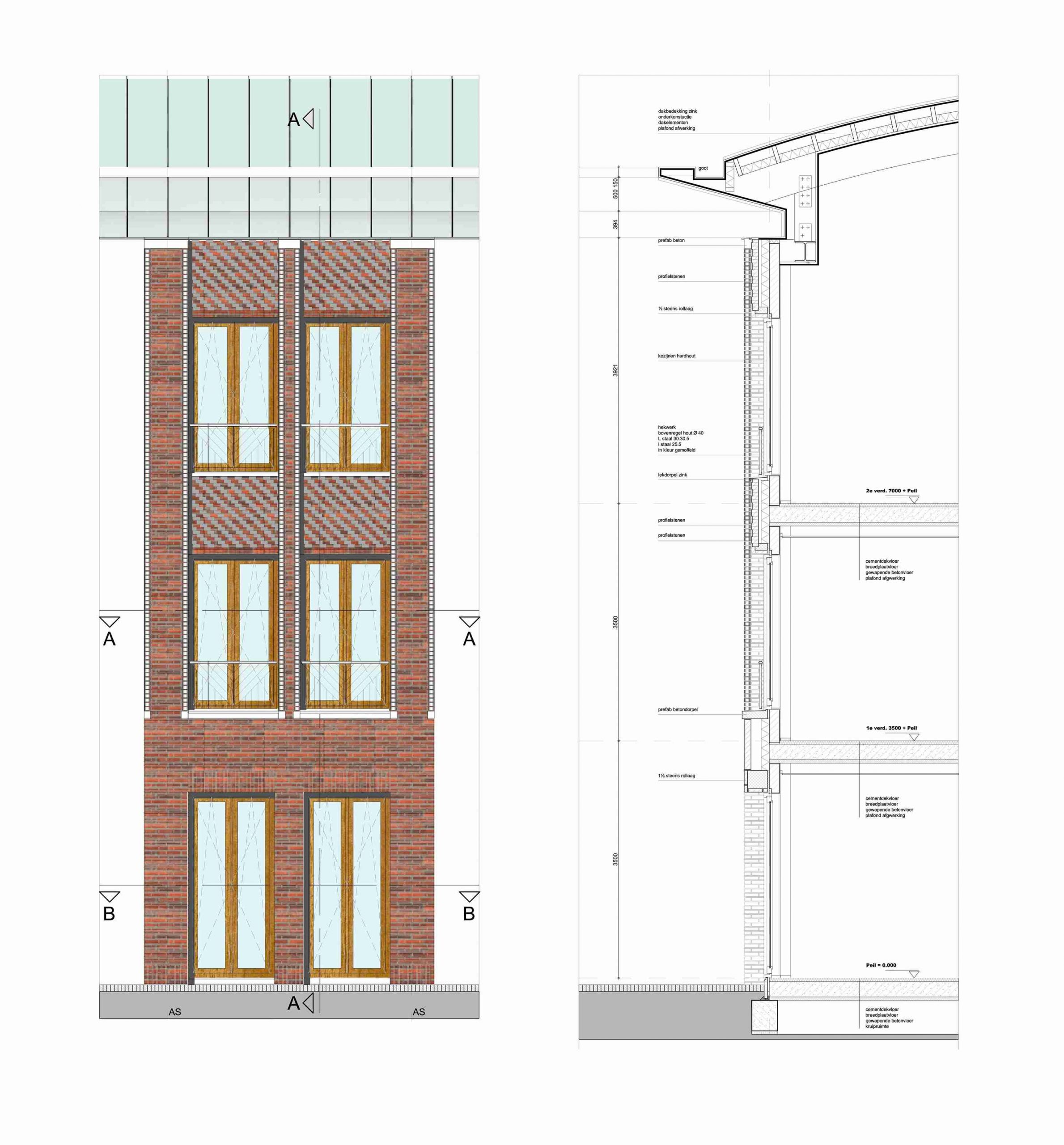
The exterior walls are clad in prefabricated concrete panels, adorned with brick strips from Hagemeister. These bricks are arranged in a unique rhythm, where half-round bricks form vertical lines that enhance the building’s structure. The use of subtly different tones in these bricks allows the facade to shift in color depending on the angle of the light, imbuing the building with a dynamic, ever-changing presence. This vertical articulation also ingeniously conceals the joints between the prefabricated elements, maintaining the facade’s seamless flow.
Facing the atrium, the interior facade is completely finished in oak, from the window frames to the finely latticed parapets. This wooden motif extends into the reception desk and certain internal walls, behind which acoustic materials are hidden, creating a quiet and welcoming atmosphere. The interior of the building exudes warmth and softness, its lines fluid and natural. The elevator shaft walls, made of etched, tempered glass, echo the subtle curves of the atrium, while the floor pattern, composed of mirrored radial arcs, creates a leaf-like design. This pattern extends beyond the atrium to the exterior plaza, linking the inside and outside and giving the sense that the building wraps itself around a grand, granite flower.
The office ceilings are equipped with drop-shaped aluminum climate panels, integrating lighting, ventilation, and heating through a low-temperature system. Surrounding the building is a water feature—a moat and pond—that brings daylight into the basement level and anchors the building in its landscape. The water emphasizes the building’s somewhat autonomous form and lends it a unique, distinguished presence.


















