Location: Leiden
Status: not realised
Program: 199 Appartments, commercial spaces, kindergarden
Date: march 2013
Client: Ymere
Total floor area: 21338 m2
Description
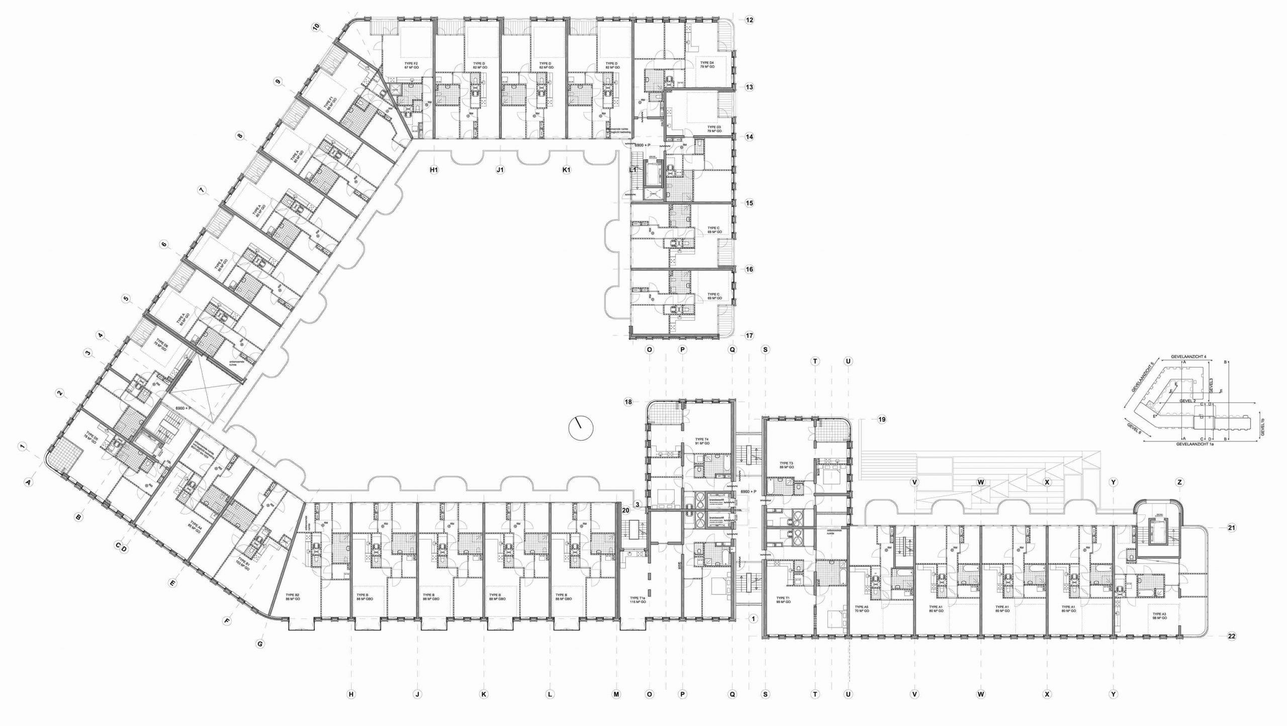
Groennoord Leiden is a remarkable residential proposal, including around 200 apartments spread across three unique typologies: a tower, a strip construction (strokenbouw), and a closed building block (gesloten bouwblok). These distinct forms come together to create a cohesive complex, with the central tower acting as the key connector. The tower is split into two parts, which embrace the surrounding buildings in a gesture of unity, a visual representation of the buildings “hugging” each other. This relationship is both symbolic and architectural, creating a sense of harmony within the entire development.
The design creates three central urban spaces that shape the experience of the site: 1) the public connecting courtyard, which links to Groennoord Plaza, 2) the semi-public internal courtyard, providing a tranquil oasis, 3) the central axis that runs through the tower, extending towards an arcade along Willem de Ziggerlaan, further connecting the site to its surroundings.
Materiality plays a central role in defining the identity of the complex. The two volumes of the tower and residential blocks are distinguished by their color and texture. One section of the development is covered in dark bricks, while the other features a lighter, white brick facade. The division is further emphasized by the glazed atrium, which separates the two parts of the tower and houses a penthouse that offers panoramic views of the city. On one side of the atrium, the tower faces the historic heart of Leiden, while on the opposite side, it frames views over the newly developed area.
The duality of the tower is fundamental to the project’s character. The two segments of the tower, while distinct in their visual and material characteristics, come together in a gesture of harmony. This relationship evoking two bodies resting gently on one another, strengthens the sense of connection, acceptance and balance within the design. The contrasting volumes are articulated as a heavier and a lighter version of the same form. The lighter section of the tower is elevated on columns, giving it a feeling of lightness and openness. Its white brick and glass facade create a sense of floating above the ground. In contrast, the heavier section, made of dark bricks and supported with a strong concrete plinth, embodies a sense of stability and permanence. This thoughtful contrast in materials and form creates a visually dynamic composition, with each part of the complex standing out while also seamlessly connecting with each-other. The light volume resembles a graceful swan floating gently above, yet securely grounded and sustained by the heavier volume, blending elegance with a profound sense of protection.
In the closed block, a functional and community-focused design includes a ground-floor kindergarten, accessible from the main axis and overlooking the inner garden. This introduces an element of vitality and interaction, enriching the living experience. The design’s vertical emphasis is highlighted by a series of repeating vertical windows and the use of vorm bakstenen (form-shaped bricks), which add texture and rhythm to the building’s elevations. The use of rounded corners throughout the building softens its form, giving it a contemporary yet approachable feel. Inside the closed block, the semi-circular balconies, extending from the galleries, offer private spaces that overlook the inner garden. These unique outdoor areas are designed to stimulate a strong connection with nature and enhance the sense of flow and openness.
Groennoord Leiden blends contemporary design with a deep sensitivity to its context, creating a residential environment that is both modern and rooted in the surrounding urban fabric. The result is a thoughtful, welcoming space that offers not only a place to live but a place to connect, reflect, and belong.









