Location: Zwarte Bergen, Bergeijk
Status: BT phase
Program: Holiday houses
Date: 2020
Client: DZB invest
Total floor area: 30231 m2
Description
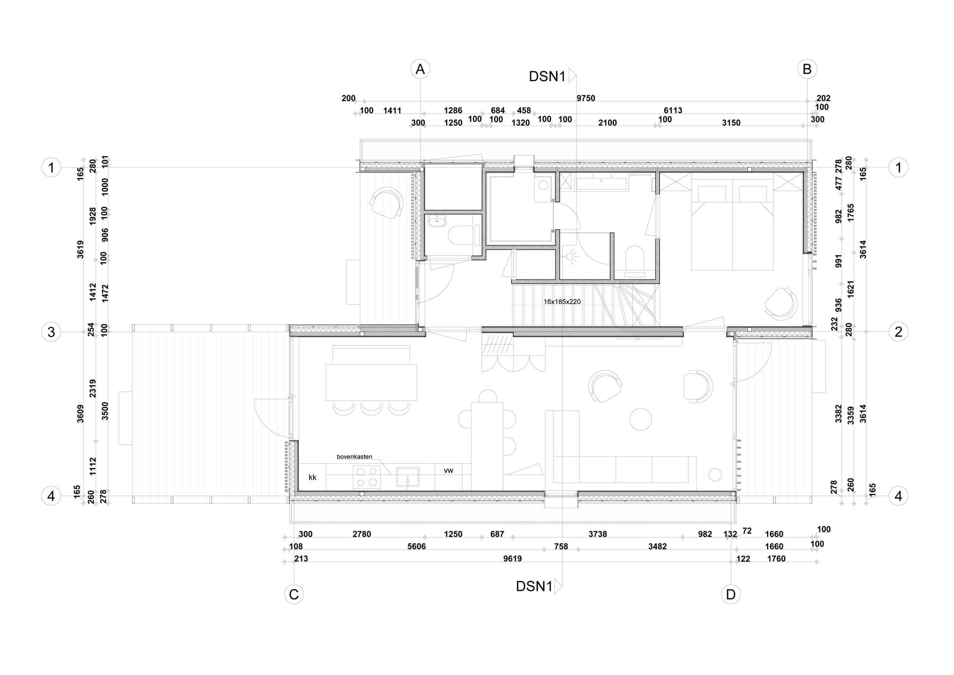
Forest Village Bergeijk, nestled in the serene Zwarte Bergen forest, is a complex of holiday houses where modern architecture harmonizes with nature. The 280 lodges are designed to blend seamlessly into the Campine landscape, offering a unique combination of privacy and integration to the surroundings.
Each lodge consists of two volumes that are shifted from each-other: a lower single-storey section with full height glazed facades facing each other, that bring natural light into the living space from two different directions and a two-storey section where the sleeping rooms are positioned. This shifted design not only creates an elegant silhouette but also forms a transition space that balances seclusion and openness. The glazed gables, the presence of a double-height atrium in the interior, and the several vertical openings in the facade that reflect the rhythm of the trunks of the trees, create uninterrupted views of the forest. The result is an immersive experience where the boundary between indoors and outdoors dissolves, allowing guests to feel fully connected to their natural surroundings. Inside, the lodges are bright and spacious, with natural materials and textures enhancing the sense of comfort and calm. Designed to accommodate groups of 4 to 20 people, they are ideal for both intimate getaways and larger gatherings. Semi-private outdoor areas further connect the lodges to their environment, offering spaces for relaxation or socializing.
Forest Village Bergeijk represents a setting where architecture becomes an extension of the forest, providing a remarkable retreat that feels modern, serene and deeply rooted in nature.


















