Location: Eindhoven
Status: SO phase
Program: Student hotel, 329 rooms
Date: 2012
Client: Stam en de koning vastgoed
Total floor area: 11816 m2
Description
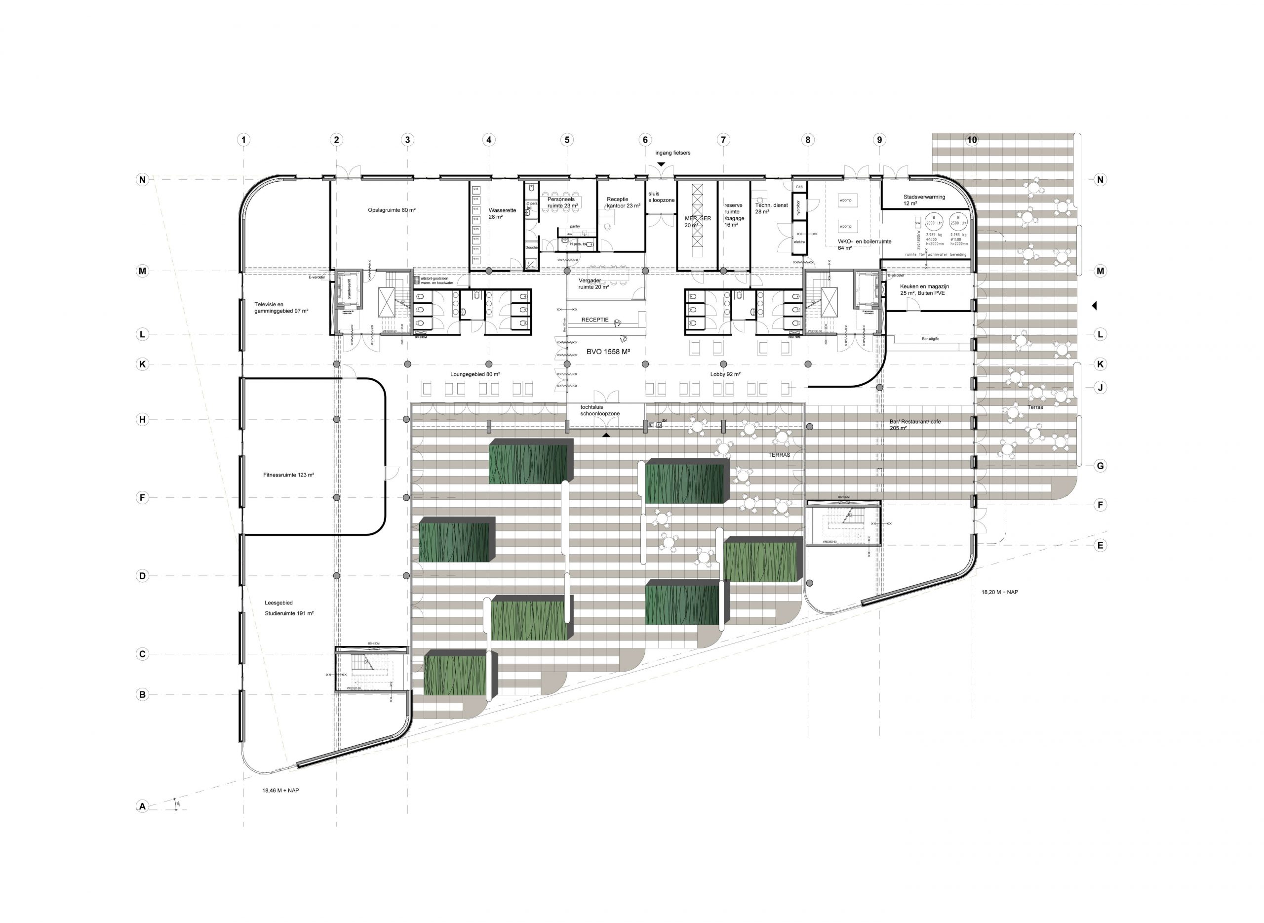
Located in the dynamic Strijp S area of Eindhoven, City Living Eindhoven is a modern student hotel designed with small apartments that offer both comfort and efficiency. The building takes the form of a U-shaped block, with its long, closed facade positioned alongside the train tracks, creating a sense of separation from the surrounding transit routes. The inner courtyard, meanwhile, faces the urban development designed by urban planner West8, helping the building to integrate smoothly into the evolving neighborhood.
The side facade, which opens up towards the city center, provides a clear visual connection with the heart of Eindhoven. The main entrance is located within the tranquil courtyard, providing a peaceful entry point that contrasts with the more dynamic surroundings. On the ground floor, the restaurant, located along the side facade, connects seamlessly with the lobby and reception, creating a welcoming atmosphere for residents and visitors.
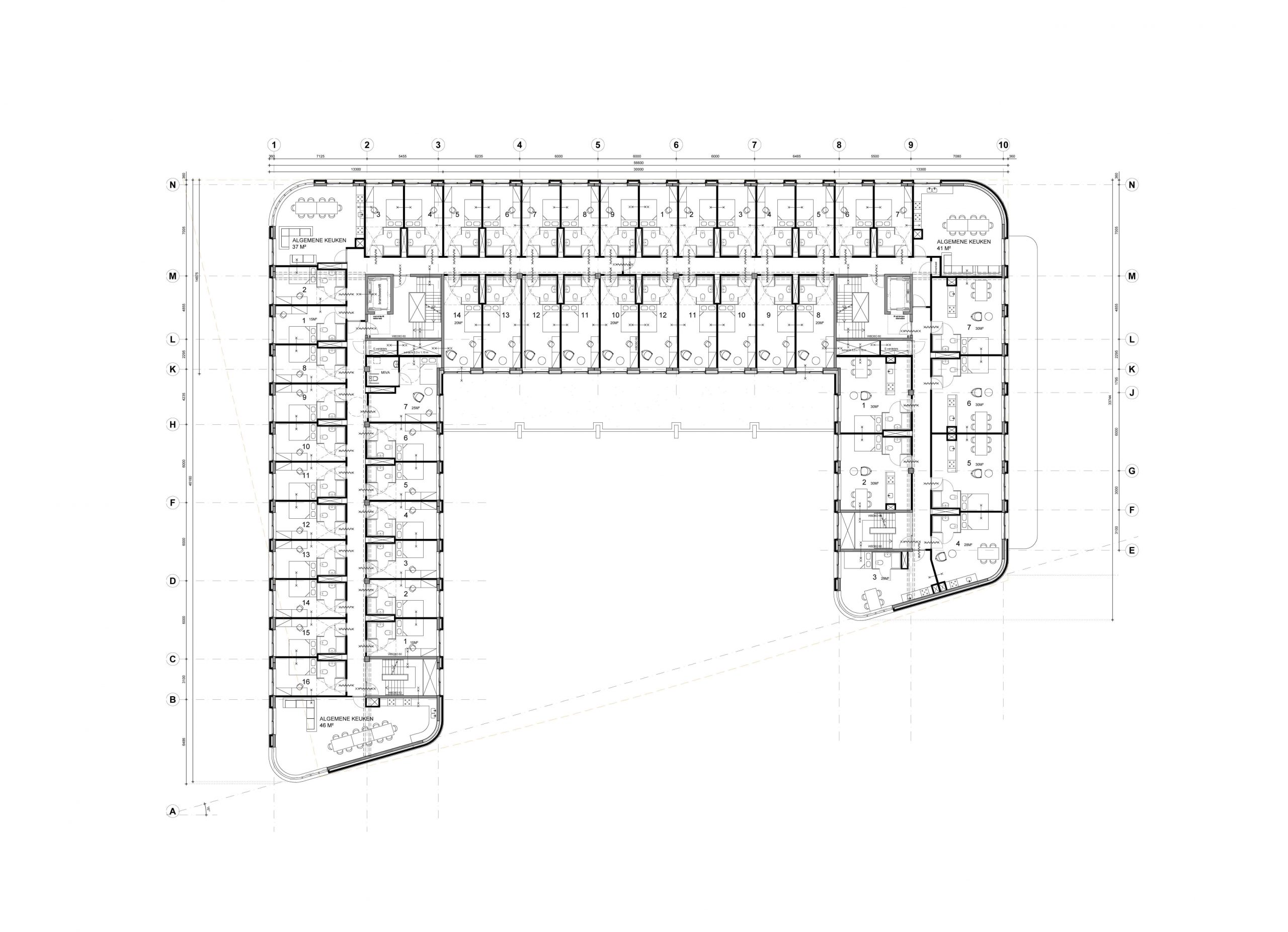
Inside, the student apartments are arranged along both sides of a central hallway, while the common spaces occupy the rounded corners of the building, where large windows offer open, expansive views. These design choices ensure that every corner of the building receives ample natural light and maintains a strong connection to the surrounding environment.
Eindhoven’s identity as the City of Light, shaped by the legacy of Philips, has influenced the building’s design. The urban plan for Strijp S integrates light elements into the architecture of each building, and in response, we’ve created a more expressive facade that faces the city. The design is inspired by the nieuwe bouwen movement, with its emphasis on functionalist and neo-modernist principles. The repetition of the same window typology across all facades gives the building an industrial expression, while soft, rounded corners add a sense of refinement and warmth.
With a careful blend of functionality, modernist design, and thoughtfully integrated lighting, City Living Eindhoven offers a space that honors the city’s past while embracing the possibilities of a vibrant, innovative future.










