Location: Den Bosch
Status: Realized
Program: 88 single-family houses
Date:2010
Client: Aannemersbedrijf Hoedemakers
Total floor area: 13860 m2
Description
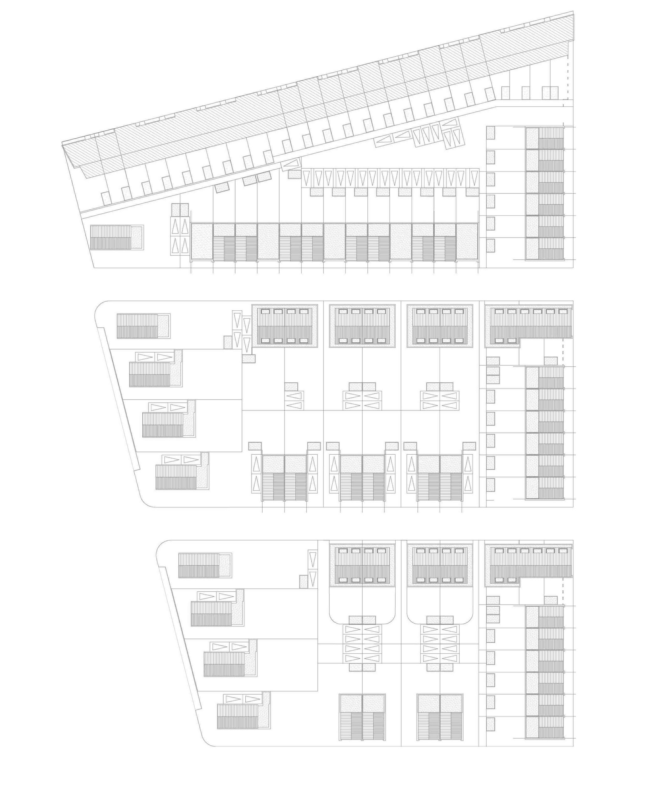
The residential urban development in Den Bosch showcases a harmonious integration of various housing typologies across a thoughtfully organized layout. By using distinct street profile like: the main access road, a central axis, side streets, and green open spaces, the development creates a series of interconnected neighborhoods, each with a unique architectural rhythm and spatial character.
The architectural rhythm of the area begins with continuous rowhouses along the main access road, creating a solid facade with a visually engaging pattern. These long rows offer a sense of enclosure and continuity that contrasts with the more compact, five-unit short rows seen along the central axis. The short rows feature angled end houses that serve as subtle markers for the entrances to side streets, enhancing the architectural rhythm and modulation of the neighborhood. The two-under-one-roof houses create a nuanced asymmetry along the side streets. This typology is divided into two variants: houses with ridges parallel to the street, featuring lower gutter lines, and houses with ridges perpendicular to the street, characterized by high, prominent front facades. This deliberate variation not only provides visual interest but also a balanced, asymmetrical street profile that distinguishes each side street’s character. The freestanding houses in the plan contribute further variety, adding a touch of openness within the otherwise cohesive built environment.
Despite these typological differences, all homes within this development share common architectural features that unify the project. Each house typology is marked by an open glazed gable with vertically-oriented wooden framing, a recurring motif that serves as a visual connector across the development and reinforces a sense of architectural harmony. Materiality plays a key role in achieving a cohesive aesthetic. The use of dark bricks with a half-brick connection lends a sense of solidity and continuity to the facades, while the concrete roof tiles emulate the look of slate, adding a refined texture to the roofscapes. Optional bow windows offer residents a degree of customization, creating subtle variations within the uniform design language. Thoughtfully integrated functional design elements, such as the placement of drainpipes within the masonry, serve both practical needs and the purpose of defining each unit in a row. These masonry details enhance the facade’s rhythm, emphasizing vertical lines while providing gentle separations between the units.
Overall, the project stands as a well-crafted balance of diversity and unity. Through the meticulous arrangement of varied house types, the neighborhood achieves both a dynamic architectural expression and a cohesive identity, fostering a sense of community and place.











